1 概述
GV-3S-40.5型戶外柱上永磁固封式真空斷路器(通用型號ZW32-40.5)采用了獨特設計的永磁機構和高可靠性的智能控制器構成。該裝置主要應用于中壓架空線電網,作為分、合負荷電流、過載電流、短路電流之用,并具有0~3次自動重合閘。
u 極高的可靠性
u 在整個壽命期間完全免維護
u 具有高機械壽命和電壽命
u 整機體積小,重量輕,便于安裝
u 具有標準繼電保護和快速自動重合閘功能
1.1 使用條件
¨ 周圍空氣溫度:-30℃~+60℃;
¨ 海拔高度:不超過2000米;
¨ 風速不超過34m/s;
¨ 來自開關設備和控制設備外部的振動或地動是可以忽略的;
¨ 污穢等級:Ⅳ級;
¨ 儲存溫度-40℃~+85℃。
1.2 技術參數
斷路器的主要技術參數
|
序 號 |
項 目 |
單 位 |
數 值 |
|
1 |
額定電壓 |
kV |
40.5 |
|
2 |
額定電流 |
A |
1250/1600 |
|
3 |
額定頻率 |
Hz |
50或60 |
|
4 |
工頻耐壓1min(濕)(干) |
kV |
80/95 |
|
5 |
雷電沖擊耐受電壓(峰值) |
kV |
185 |
|
6 |
額定短路開斷電流 |
kA |
31.5 |
|
7 |
額定短路關合電流(峰值) |
kA |
80 |
|
8 |
額定峰值耐受電流 |
kA |
80 |
|
9 |
4S短時耐受電流 |
kA |
31.5 |
|
10 |
額定操作循環 |
|
分-0.1s-合分-3s-合分-6s合分-60s恢復 |
|
11 |
額定短路電流開斷次數 |
次 |
30 |
|
12 |
機械壽命 |
次 |
20000 |
|
13 |
永磁機構控制電壓 |
V |
DC220 |
|
14 |
二次回路1min工頻耐壓 |
KV |
2 |
斷路器的主要機械參數
|
序 號 |
參數名稱 |
單 位 |
數 據 |
|
1 |
觸頭開距 |
mm |
16±1 |
|
2 |
觸頭超行程 |
mm |
4±0.5 |
|
3 |
分閘速度 |
m/s |
1.4-1.8 |
|
4 |
合閘速度 |
m/s |
0.4-0.8 |
|
5 |
觸頭合閘彈跳時間 |
ms |
≤5 |
|
6 |
相間中心距離 |
mm |
460±2 |
|
7 |
三相分合閘不同期性 |
ms |
≤2 |
|
8 |
各相導電回路電阻 |
μΩ |
<120 |
|
9 |
合閘時間 |
ms |
25~45 |
|
10 |
分閘時間 |
ms |
20~45 |
|
11 |
重量 |
Kg |
295 |
功能原理
2 斷路器結構及工作原理
GV-3S-40.5型戶外柱上永磁固封式真空斷路器主要由集成固封極柱、電流互感器、永磁操動機構及箱體組成。該型號斷路器為小型化設計。同時配有手動緊急分閘裝置。電流互感器可根據用戶需要選擇。
GV-3S-40.5型戶外柱上永磁固封式真空斷路器的控制由配套的智能控制單元完成。可就地實現開關分合閘操作,也可以通過通信接口由遠方遙控操作。斷路器的其他信息也可以傳輸到控制中心,通信通道可以選擇電纜、光纖、GPRS/CDMA、GSM等。
智能控制單元接近斷路器安裝,通過控制電纜與斷路器連接。智能控制單元的電源分主備供電,主電源為AC或DC 220V,由高壓線路經PT取得;后備電源由蓄電池提供(安裝于智能控制單元箱內)。當正常工作時主電源對后備電源充電;當主電源失去時,由后備電源供電,仍可完成對斷路器的控制以及控制單元內的其他操作,后備電源(滿載時)可維持整機不小于48小時工作。
斷路器操動機構中設有手動緊急分閘把手,作為控制系統或電源故障時緊急分閘操作之用。
2.1斷路器的工作原理與過程
2.1.1滅弧原理:GV-3S-40.5型戶外柱上永磁固封式真空斷路器采用真空滅弧室,以真空作為滅弧和絕緣介質,具有極高的真空度。當動、靜觸頭在操動機構作用下帶電分閘時,在觸頭間將會產生真空電弧,同時,由于觸頭的特殊結構,在觸頭的間隙中也會產生適當的縱向磁場,促使真空電弧保持為擴散型,并使電弧均勻地分布在觸頭表面燃燒,維持低的電弧電壓,在電流自然過零時,殘留的離子、電子和金屬蒸汽在微秒數量級的時間內就可復合或凝聚在觸頭表面和屏蔽罩上,滅弧室斷口的介質絕緣強度很快被恢復,從而電弧被熄滅達到分斷的目的。由于采用縱向磁場控制真空電弧,所以真空斷路器具有強而穩定的開斷電流能力。
2.1.2儲能GV-3S-40.5型戶外柱上永磁固封式真空斷路器分合閘能量儲存在高性能電容器中,電容器安裝于智能控制器單元箱體內。分合閘時由電容器瞬時放電提供能量。電容器充電能量由控制單元的主電源或后備電源提供,充電時間不大于10s,電容電壓誤差≤1V。
2.1.3合閘操作:本地按動智能控制單元上的合閘按鈕,或者通過遠方遙控合閘操作,激勵操動機構的合閘線圈,使鐵芯驅動斷路器動觸頭按規定速度合閘。判斷出斷路器已處在合閘位置時,控制回路自動將合閘線圈電源斷開,此時鐵芯由于永久磁鐵的作用保持在合閘側,在合閘線圈斷電后,它不僅能夠克服斷路器觸頭彈簧的反作用力,而且還具有合閘自保持力,使斷路器可靠地保持在合閘位置。
2.1.4分閘操作:本地按動智能控制單元上的分閘按鈕,或者通過遠方遙控分閘操作,激勵操動機構的分閘線圈,克服合閘側永久磁鐵的自保持力的同時使分閘彈簧拉動鐵芯驅動斷路器動觸頭按規定速度分閘。判斷出斷路器已處在分閘位置時,控制回路自動將分閘線圈電源斷開,此時鐵芯由于分閘彈簧拉力的作用保持在分閘側,使斷路器可靠地保持在分閘位置。
2.1.5手動緊急分閘操作:斷路器在合閘位置,用絕緣操作棒鉤住斷路器手動分閘操作把柄上的拉環,并向下拉動,斷路器即可分閘,并且仍具有一定的分閘速度,可保證斷路器能可靠地開斷額定負荷電流。
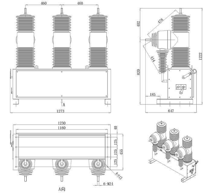
結構尺寸
3 斷路器安裝尺寸圖
4 斷路器外形結構圖
4斷路器安裝示意圖
產品實拍

