ZN63A-12(VS1)戶內交流高壓真空斷路器適用于三相交流50Hz,額定電壓為7.2KV~12KV的電力系統中作投切各種不同性質的負荷及頻繁操作的場合,可供工礦、企業、發電廠及變電站電氣設備的保護和控制之用。可配用KYN28A-12(GZS1)等中置手車式開關柜,也可配于XGN一口固定式開關柜。ZN63A-12(VS1-12)戶內交流高壓真空斷路器符合國家標準GB1984《交流高壓斷路器》、JB3855《3.6~40.5KV戶內交流高壓真空斷路器》和IEC60056 《高壓交流斷路器》標準。滿足DL/T403 《10~35KV戶內高壓真空斷路器訂貨技術條件》。
常用型號:VS1-12/630-20 vs1-12/630-25 VS1-12/1250-25(31.5) 固定式,手車式,永磁型,固封式可選。
技術參數
主要技術參數
|
1、ZN63A-12(VS1-12)真空斷路器主要技術參數
|
|
|
序 號
|
名 稱
|
單位
|
數 據
|
|
1
|
額定電壓
|
KV
|
12
|
12
|
12
|
12
|
12
|
|
2
|
額定電流
|
A
|
630,1250
|
630,1250
|
630,1250,1600
|
1250,1600,2000
|
2000,2500,3150
|
|
3
|
額定絕緣水平
|
1min工頻耐壓
|
KV
|
42
|
42
|
42
|
42
|
42
|
|
額定雷電沖擊耐壓
|
75
|
75
|
75
|
75
|
75
|
|
4
|
額定短路開斷電流
|
KA
|
16
|
20
|
25
|
31.5
|
40
|
|
5
|
額定短路關合電流(峰值)
|
40
|
50
|
63
|
80
|
100
|
|
6
|
額定(峰值)耐受電流
|
40
|
50
|
63
|
80
|
100
|
|
7
|
額定短時耐受電流
|
16
|
20
|
25
|
31.5
|
40
|
|
8
|
額定短路開斷電流開斷次數
|
次
|
50
|
50
|
50
|
50
|
30
|
|
9
|
額定短路持續時間
|
S
|
4
|
4
|
4
|
4
|
4
|
|
10
|
額定操作順序
|
|
分-t-合分-180s-合分*
|
|
11
|
機械壽命
|
次
|
2000
|
20000
|
20000
|
20000
|
10000
|
|
12
|
額定單個電容器組開斷電流
|
A
|
630
|
630
|
630
|
630
|
630
|
|
13
|
額定背靠背電容器組開斷電流
|
A
|
400
|
400
|
400
|
400
|
400
|
|
|
*16KA,20KA,25KA,31.5KA:t=0.3S; 40kA:t=180S
|
|
|
|
|
|
2、儲能電機
采用永磁式單相直流電動機,其技術數據如下:
|
|
|
型 號
|
額定電壓(V)
|
額定輸出功率(W)
|
正常工作電壓范圍(V)
|
額定電壓下儲能時間(S)
|
|
ZYJ55-1
|
DC110,DC220
|
70
|
85%~110%額定電壓
|
≤10
|
|
|
|
|
|
3、ZN63A-12(VS1)真空斷路器機械特性參數
|
|
|
序 號
|
名 稱
|
單位
|
數 據
|
|
1
|
觸頭開距
|
mm
|
11±1
|
11±1
|
11±1
|
11±1
|
11±1
|
|
2
|
超行程
|
mm
|
3±0.5
|
3±0.5
|
3±0.5
|
3±0.5
|
3.5±0.5
|
|
3
|
三相分、合閘不同期性
|
ms
|
≤2
|
≤2
|
≤2
|
≤2
|
≤2
|
|
4
|
合閘觸頭彈跳時間
|
ms
|
≤2
|
≤2
|
≤2
|
≤2
|
≤2
|
|
5
|
相間中心距
|
mm
|
210±1.5
|
210±1.5
|
210±1.5
|
210±1.5
|
275±1.5
|
|
6
|
合閘觸頭接觸壓力
|
N
|
16KA
|
20KA
|
25KA
|
31.5KA
|
40KA
|
|
2000±2000
|
2400±200
|
2400±200
|
3100±200
|
4250±250
|
|
7
|
平均分閘速度
|
m/s
|
0.9~1.3
|
0.9~1.3
|
0.9~1.3
|
0.9~1.3
|
0.9~1.3
|
|
8
|
平均合閘速度
|
m/s
|
0.4~0.8
|
0.4~0.8
|
0.4~0.8
|
0.4~0.8
|
0.4~0.8
|
|
9
|
分閘時間,
當操作電壓為
|
最高
|
ms
|
≤50
|
≤50
|
≤50
|
≤50
|
≤50
|
|
額定
|
≤60
|
≤50
|
≤50
|
≤50
|
≤50
|
|
最低
|
≤60
|
≤60
|
≤60
|
≤60
|
≤60
|
|
10
|
合閘時間
|
ms
|
≤100
|
≤100
|
≤100
|
≤100
|
≤100
|
|
11
|
動、靜觸頭累積允許磨損厚度
|
mm
|
3
|
3
|
3
|
3
|
3
|
|
|
|
|
4、分、合閘線圈技術參數
|
|
|
分閘線圈
|
合閘線圈
|
備注
|
|
額定操作電壓(V)
|
DC220,DC110; AC220,AC110
|
DC220,DC110; AC220,AC110
|
分閘線圈在小于
|
|
線圈功率(W)
|
245
|
245
|
30%額定操作電
|
|
正常工作電壓范圍
|
65%~120%額定電壓
|
85%~110%額定電壓
|
壓時,不得分閘
|
|
|
|
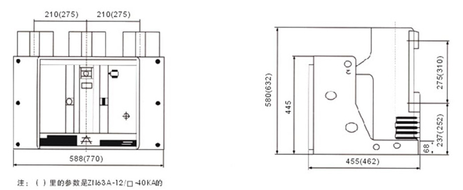
結構尺寸
