該隔離開關在選型時除了認準知名商標,如川龍電氣,以及在此基礎上對比產品性能價格外。需要注意的重點總結如下:
一:開關概述

GN19-10(GN19-10C)系列戶內高壓隔離開關適用于交流5Hz,額定工作電壓6,10kv;額定工作電流200、630、1250A的電力系統中。作為有電壓無負荷情況下的分斷,閉合電路的戶內開關設備使用。此隔離開關配用 CS6-1 型手力操動機構。
二:型號及含義

需要說明的是GN19-10戶內高壓隔離開關型號中,形式分為GN19-10平裝結構式;GN19-10C為穿墻式(帶套管);其中:C1--轉動在套管側
C2--開斷在套管側,C3--兩側均為套管。GN19-10Y平裝結構式上加裝帶電顯示裝置型式。
一般常見的型號有以下幾種:
GN19-10A400A GN19-10/630A GN19-10/1000A GN19-10/1250A
GN19-10C/400A GN19-10C/630A GN19-10C/1000A GN19-10C/1250A
三:主要技術參數
| 型號 | 額定工作電壓(KV) | 最高工作電壓(KV) | 額定工作電流(A) | 動穩定電流(峰值)(KA) | 2S熱穩定電流(KA) |
| GN19-10/400-12.5 | 10 | 11.5 | 400 | 31.5 | 12.5 |
| GN19-10/630-20 | 10 | 11.5 | 630 | 50 | 20 |
| GN19-10/1000-31.5 | 10 | 11.5 | 1000 | 80 | 31.5 |
| GN19-10/1250-40 | 10 | 11.5 | 1250 | 100 | 40 |
| GN19-10C/400-12.5 | 10 | 11.5 | 400 | 31.5 | 12.5 |
| GN19-10C/630-20 | 10 | 11.5 | 630 | 50 | 20 |
| GN19-10C/1000-31.5 | 10 | 11.5 | 1000 | 80 | 31.5 |
| GN19-10C/1250-40 | 10 | 11.5 | 1250 | 100 | 40 |
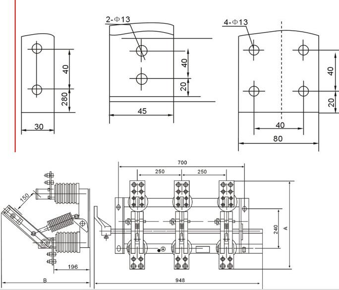
四:外形及安裝尺寸


五:結構和工作原理
GN19-10/400A、GN19-10/630A、GN19-10/1000A、GN19-10/1250A戶內高壓隔離開關的每相導電部分通過兩個支柱絕緣子固定在底座上。(GN19-10C/400A、GN19-10C/630A、GN19-10C/1000A、GN19-10C/1250A型則為一個為支柱絕緣子,一個為瓷套管絕緣子)三相平行安裝,導電部分由觸刀、靜觸頭、觸座(或導電桿)組成。每相觸刀中間均連有拉桿絕緣子,拉桿絕緣子與安裝在底座上的主軸相連。主軸通過手柄與連桿和CS6-1型手力機構相連在一起連動。
觸刀由兩片槽形銅板組成,它不僅增大了觸刀散熱面積,對降低溫度有利,而且提高了觸刀的機械強度,使開關的動穩定性提高。觸刀一端通過螺栓安裝在觸座上(或導電桿上)。為轉動接觸觸刀,另一端與靜觸刀系可分連接,而觸刀觸壓力靠兩端的彈簧來維持。
此里謝戶內高壓隔離開關在接觸處安排有磁鎖板,加磁鎖板的目的是,當很大的短路電流通過時加強了兩槽形觸刀之間的吸引力,亦即增加了接觸壓力,因而提高了開關的動熱穩定性。 GN19- 10/400A 、 GN19-10/630 隔離開關極即通過電流小。因此結構無需加磁鎖板。
底座裝配:由底座、主軸、限位器、止檔圈等組成。限位器主要用來保證導電觸刀分、合時得到所要求的終點位置。
六:使用環境
1.海拔高度不超過 2000 米;
2.周圍環境溫度不高于 +40 ℃及不低于 -10℃;
3.無劇烈振動、擺動或沖擊的場所;
4.無火災、爆炸、腐蝕金屬破壞絕緣的有害氣體及導電場所;
5.相對濕度不大于 90%(+25℃
如果你希望了解GN19-10(GN19-10C)戶內高壓隔離開關的更多內容,如產品使用說明書,規格參數,價格,維修更換等信息,請聯系我們。
